وبلاگ یک دانشجوی معماری

اخبار دنیای من

وبلاگ یک دانشجوی معماری

اخبار دنیای من

نویسندگان

پروژه کانون وکلای قزوین

سه شنبه, ۷ آبان ۱۳۹۲، ۰۹:۴۵ ب.ظ

به نقل از طراحان: ایده اصلی برای طراحی کانون وکلای قزوین با طرح یک سوال ساده شروع شد: چگونه می توانیم پروژه ای طراحی کنیم که ضمن هماهنگی با محیط اطرافش در بافت شهری به خوبی ادغام شود و بتواند به عنوان بنایی شاخص برای شهر قزوین عمل نماید. از این رو طرح پیشنهادی ما به گونه ای است که علاوه بر دارا بودن فرمی به روز، با نمایی برآمده از نیازهای عملکردی پروژه ، دارای هماهنگی با ساختارهای معماری ایرانی نیز می باشد.


طراحان: علی رضا اسفندیاری - علی قراخانی - محسن تاج الدین - زهرا آقامحمدی

همکاران طراحی: نسیم صحت - احسان کریمی - مرجان میرخشتی - شیما شرافتی

(برای مشاهده تصاویر در سایز بزرگتر بر روی آن کلیک کنید)


با توجه به برنامه فیزیکی فشرده و عملکردی، ساختمان باید علاوه بر تامین نیازهای عمومی یک ساختمان اداری، قابلیت پاسخگویی و تبدیل پروژه به یک کانون صنفی معتر را نیز دارا باشد.

با توجه به عمق زیاد ساختمان سعی شده با ایجاد نورگیر مناسب در نما نور خورشید را به عمق ساختمان برده تا تمامی فضاها از نور طبیعی بهره مند گردند. این فضاهای نورگیر ضمن تامین نور مناسب برای پروژه سبب ایجاد فضاهای نیمه خصوصی برای پروژه می گردد که بر جذابیت فضایی پروژه می افزاید. با توجه به فرم زمین و بهره گیری پروژه از نورهای نامناسب غرب و شرق آجرهای نما 45 درجه چرخیده است این موضوع ضمن جلوگیری از ورود نور مستقیم آفتاب سبب ایجاد چشم انداز وسیع تری برای فضاهای داخلی می گردد که این رویکرد تداعی کننده طرحهای مشبک سنتی ایرانی است .که با توجه به حرکت خورشید در طول روز در محور افق با حفظ سادگی به ایجاد فضایی بدیع می پردازد.


توجه به سادگی و سهولت قابلیت اجرایی با توجه به مصالح و تکنولوژی بومی نیز از مهمترین رویکردهای طراحی بوده است. در طراحی نمای پروژه از آجر ماسه آهکی استفاده شده است که ضمن دارا بودن زیبایی و مقاومت فشاری بالا ، عایق صوتی و حرارتی بوده و نیز از لحاظ اقتصادی مقرون به صرفه می باشد. 


مهمترین چالش در طراحی پروژه استفاده حداکثری از نور خورشید بوده است . رویکرد طراحی ما برای جوابگویی و حل این مشکل ، توجه ویژه به سطوح تاریک و کم ر نورگیر بوده . سعی شده با ایجاد برشهایی در حجم و ایجاد نورگیرهای متناسب عمق نورگیری افزایش یابد و به کمترین فضای تاریک دست یابیم. با استفاده از این رویکرد، سطح نورگیری با عمق مفید به دوبرابر سطوح در معرض نور مستقیم افزایش پیدا کرده است.



مقاطع:





نمای غربی:




نمای شرقی:



نمای شمالی:



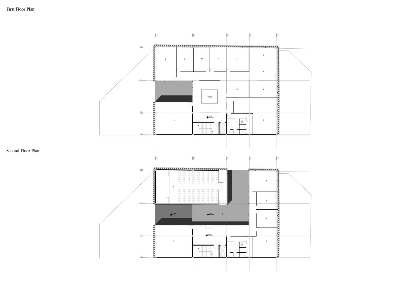
پلان طبقات:





نظرات (۰)

هیچ نظری هنوز ثبت نشده است
ارسال نظر آزاد است، اما اگر قبلا در بیان ثبت نام کرده اید می توانید ابتدا وارد شوید.
شما میتوانید از این تگهای html استفاده کنید:
<b> یا <strong>، <em> یا <i>، <u>، <strike> یا <s>، <sup>، <sub>، <blockquote>، <code>، <pre>، <hr>، <br>، <p>، <a href="" title="">، <span style="">، <div align="">
تجدید کد امنیتی